Rif: 1062
ROMA
ROMA - zona Trevi
Centro Storico nelle immediate vicinanze di Palazzo Colonna, più precisamente in Via dell'Archetto, proponiamo la vendita di un locale commerciale di circa 92 mq, attualmente locato ad attività di ristorazione con regolare contratto di 6 anni, ma con possibilità di liberarlo.
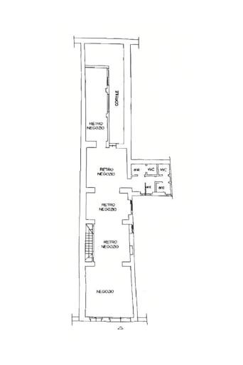
Ristrutturato, il locale offre ampi spazi interni, negozio e retronegozio doppi servizi con antibagno. Attraverso una scala si accede al magazzino di circa 92 mq. In ottimo stato è dotato di pavimenti in ceramica, pareti in intonaco con arcate in pietra, aria condizionata.
La zona, ricca di fascino storico e architettonico, dista pochi minuti a piedi dal Pantheon, Piazza della Rotonda, e Via del Corso. Un contesto dinamico e altamente frequentato, ideale per chi desidera rilevare un'azienda food già avviata e pronta all'uso oppure per chi vuole avviare una nuova attività.
Prezzo di vendita Eu. 540.000,00. Classe energetica di appartenenza: G.
Ristrutturato, il locale offre ampi spazi interni, negozio e retronegozio doppi servizi con antibagno. Attraverso una scala si accede al magazzino di circa 92 mq. In ottimo stato è dotato di pavimenti in ceramica, pareti in intonaco con arcate in pietra, aria condizionata.
La zona, ricca di fascino storico e architettonico, dista pochi minuti a piedi dal Pantheon, Piazza della Rotonda, e Via del Corso. Un contesto dinamico e altamente frequentato, ideale per chi desidera rilevare un'azienda food già avviata e pronta all'uso oppure per chi vuole avviare una nuova attività.
Prezzo di vendita Eu. 540.000,00. Classe energetica di appartenenza: G.
Consistenze
Descrizione | Superficie | Sup. comm. |
---|---|---|
Principali | ||
Negozio - piano terra | 92 Mq | 92 Mqc |
Totale | 92 Mqc |